The South

Bringing Girvan Together
We’re working to purchase the South Parish Church and transform it into a vibrant community hub, a place for theatre, film, live music, celebrations, and gatherings of every kind. Our plans also include a 30-bed bunkhouse to welcome visitors and boost local tourism.
Girvan hasn’t had a true town hall since 1939, and with the closure of the Beach Pavilion 15 years ago, we’ve been without a venue for larger events.
Together, we now have the chance to change that – creating a space that brings people together and puts Girvan firmly on the map.
FUNDRAISING EVENT – SONS OF THE SOUTH
Inspired by the names on the war memorial plaque in the foyer of the South Parish Church, local Actor Frazer Kirkland and the Girvan and District Great War Project will dramatise the stories of some of the fallen from both world wars.
Click here for full details and tickets
The south has been given charitable status – we are now a SCIO. If you wish to support us or become a member, click here.
All the surveys and reports that are essential in order to buy the South Parish Church, have been done, and the architect has finalised the concept plans for the buildings.
The next stage: Architectural concept

Click on the model or here to run it on your browser. It will take a few seconds to load.
Mouse or touch controls.
Lower right icon for fullscreen mode, “Esc” to exit full screen mode.
Left mouse button drag to rotate about screen – finger drag to rotate on phone or tablet
Mouse Scroll wheel to zoom in and out – finger pinch to zoom /expand on phone or tablet
Hold Scroll button down to pan sideways – 2 finger drag to pan on phone or tablet
On a PC, buttons 1-9 zoom to different camera positions.
In the top menu bar, left and right arrows move between these points.
n the top menu bar, the roof icon hides/Shows Roofs
n the top menu bar, the “B” button hides/shows the upper bunkhouse
n the top menu bar, the “Z” button shows the building functions overlay
We can’t thank David McKie enough for doing the 3D digital model for free. It makes visualising the new venue and bunkhouse easy, and is also extremely useful for us to explore the building and see how it works. The cost to the project of a model of this quality would have been upwards of £4000, and David spent hundreds of hours of his own time doing this for us, then flew over from his home in Switzerland to be at the community event to demonstrate how the model works. A wonderful gesture from an ex-pat who desperately wants Girvan to be better.
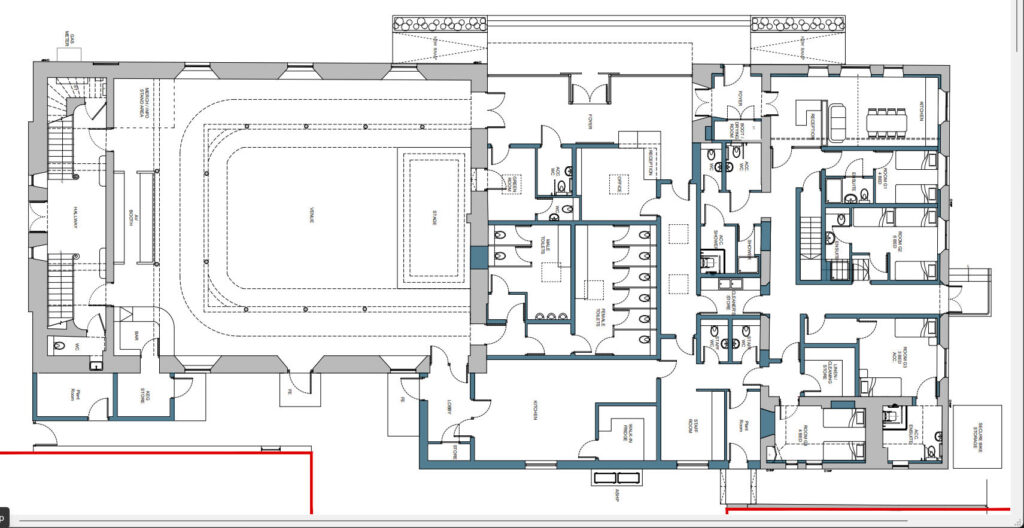
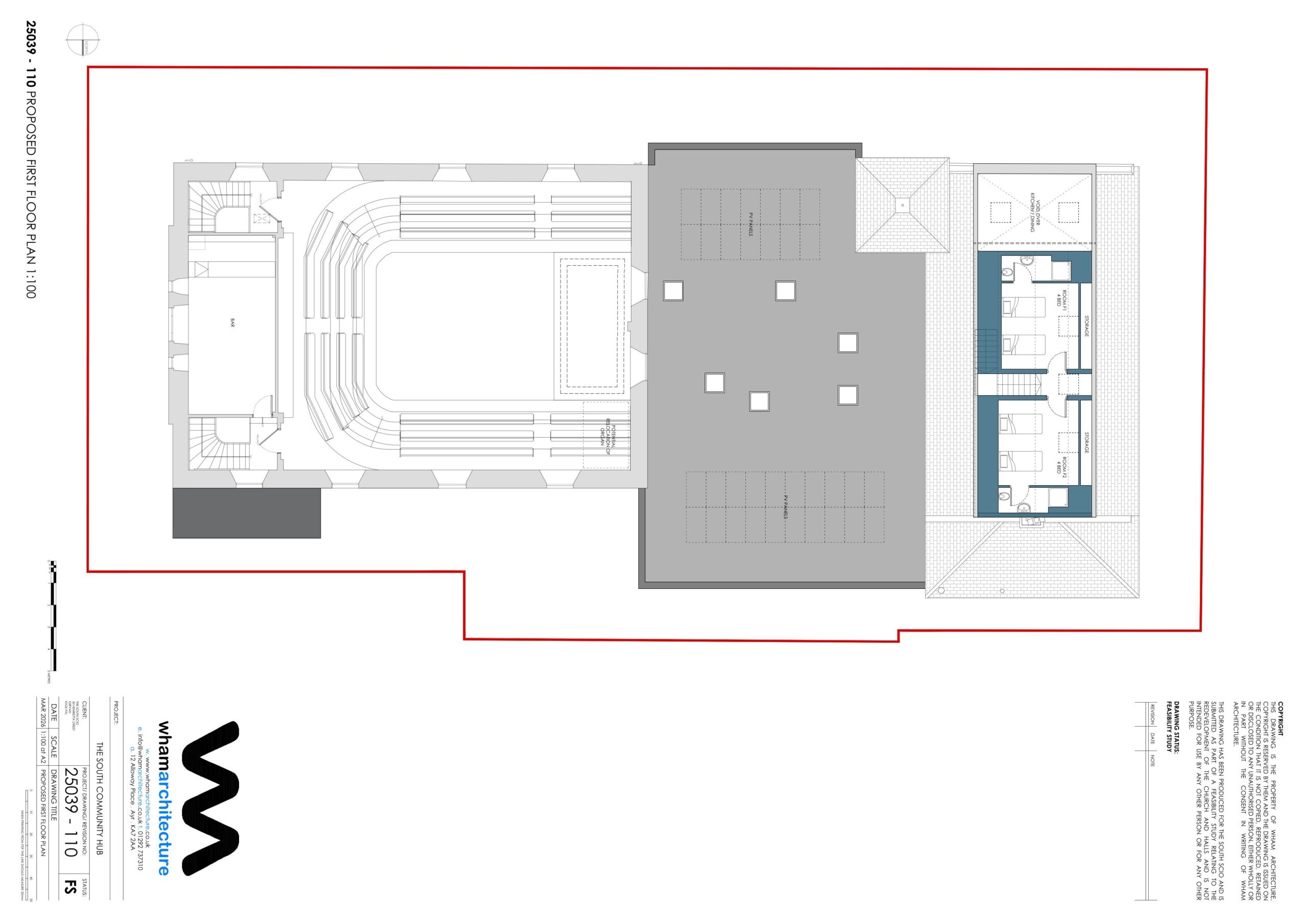
The Plans
Click on the images to see the plans in detail


We are currently putting together an application to the Scottish Land Fund for stage 2 funding to buy the South Parish, and that will be submitted by the end of June.
REQUEST FOR HELP
WEDDINGS, WALKING, CYCLING, AND ENTERTAINMENT
As part of our business plan, we’ve been doing a lot of research supporting the project. For the bunkhouse, we’re trying to find as much evidence as possible that the bunkhouse would be used by walkers and cyclists passing through Girvan. If you have any information or data that would support this, please get in touch.


Weddings and entertainment are a big part of what the south will bring to Girvan, but we need evidence to support this. If you got married in the last 15 years, or you have any stories or photographs about the Beach Pavilion or any other older Girvan venues, please get in touch as we desperately need your help. Email us at info@thesouthgirvan.co.uk


Fundraising Events
We can’t thank everybody enough for being so supportive of our first three very successful fundraising events. Our Burns Night for Beginners, our Band Night with ‘The Peas’ and our Musical Bingo Night were all great fun, and raised just short of £4500 between the three.
THANK YOU
We hope to have another band night in August or September and we are currently talking to a couple of bands who would be willing to help us out.
The South will rise – Our vision in Film
Open Day – What a Turnout
Over 300 people dropped in to our first public engagement event to talk to us, learn about the project, have some cake & coffee, get a tour of the church, and watch Rodger and Craig’s film.
They also gave us a lot of feedback through our survey form, our brainstorming board and our suggestions sheets. It will help us when we sit down and talk to architects and the feasibility study people.
The Kids got to play with a Lego model of the church and the halls, colour in pictures and do a scavenger hunt.
And a lot of people signed up as supporters, which really helps us when we approach funders.
We’ll be posting lots of photos taken on the day – click below to see them, and you can also choose to do the survey online, or register as a supporter or a member

